Starting at $137,500+GST
Dimensions 8' x 28'
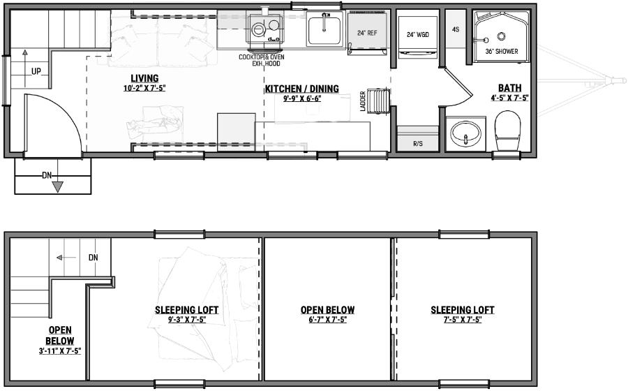
Liveable Space 362 sq.ft.
Sleeps 4 people
About Yukon
The Yukon offers spacious and flexible living in a compact RV footprint. With room to sleep four and dual sleeping lofts, it’s ideal for families, guests, or anyone wanting a little extra room to stretch out.
A full kitchen and bathroom come standard, along with a washer/dryer combo for added convenience. Whether it’s your main residence or a luxurious getaway, the Yukon blends functionality with comfort and is ready for all seasons.
Don’t Wait – The Yukon is Ready Now
We currently have one Yukon in stock and ready to ship. Skip the build time and get moving with delivery available anywhere in North America. Get in touch today!
Features
- Full Kitchen
- Full Bathroom
- RV Hookups
- Certified RV
- Washer/Dryer Combo
- Four-Season Ready
- Sleeping Lofts
Looking for added comfort? Premium upgrades like air conditioning and in-floor heating are available for any model. Just ask!
- Compact, towable design built for travel and flexibility
- Everything you need for life on the move or seasonal stays

Interior Photos
Exterior Photos
Loving this plan?
Let's explore how the Yukon could be the perfect fit for your lifestyle. This model can be customized to suit your needs, or used as inspiration for a completely custom design. Reach out today to start the conversation!








































