Starting at $174,500+GST
Dimensions 12' x 32'
Liveable Space 352 sq.ft.
Sleeps 2 people
About Whistler
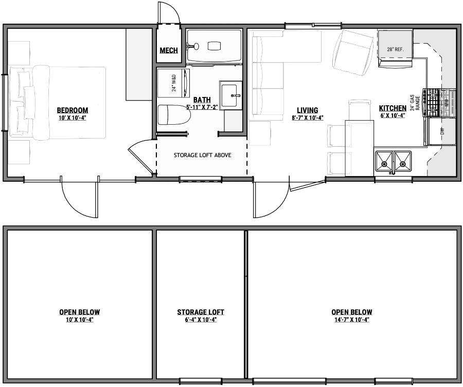
The Whistler is a bright and practical tiny home that’s ideal for full-time living or a cozy getaway. Its mix of wood siding and metal cladding gives it a clean, modern look, while large windows and double patio doors flood the space with natural light.
Inside, the 352 sq.ft. main floor includes a full kitchen, bathroom, and dedicated living area. A generous storage loft adds extra flexibility, and a mechanical room makes space for utilities or HVAC equipment. Designed for year-round use, the Whistler packs comfort and function into a compact footprint.
Features
- Full Kitchen
- Full Bathroom
- RV Hookups
- Washer/Dryer Combo
- Main Floor Bedroom
- Four-Season Ready
- Large Windows
- Storage Loft
- Mechanical Room
Looking for added comfort? Premium upgrades like air conditioning and in-floor heating are available for any model. Just ask!
- Spacious layouts with full-size features for everyday comfort
- Perfect for long-term stays in resorts, communities, or private land

Loving this plan?
Let's explore how the Whistler could be the perfect fit for your lifestyle. This model can be customized to suit your needs, or used as inspiration for a completely custom design. Reach out today to start the conversation!


