Starting at $149,000+GST
Dimensions 8' x 32'
Liveable Space 377 sq.ft.
Sleeps 5 people
About Tofino
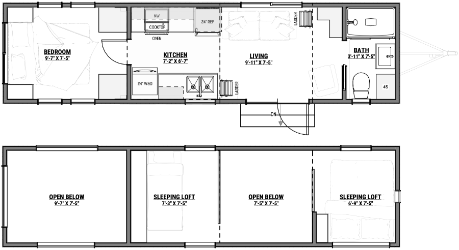
The Tofino is a spacious, family-friendly model with everything you need to live comfortably in a compact footprint. It features a private main-floor bedroom, two sleeping lofts, and room to sleep up to five people. A full kitchen, full bathroom, and dedicated living area offer all the essentials for everyday living.
Designed for comfort and convenience, the Tofino includes a washer/dryer combo and is built for four-season use. Large windows and a high ceiling in the main bedroom create a bright and open atmosphere, while the efficient layout makes the most of every square inch.
Features
- Full Kitchen
- Full Bathroom
- RV Hookups
- Washer/Dryer Combo
- Main Floor Bedroom
- Four-Season Ready
- Sleeping Lofts
- Certified RV
Looking for added comfort? Premium upgrades like air conditioning and in-floor heating are available for any model. Just ask!
- Compact, towable design built for travel and flexibility
- Everything you need for life on the move or seasonal stays

Loving this plan?
Let's explore how the Tofino could be the perfect fit for your lifestyle. This model can be customized to suit your needs, or used as inspiration for a completely custom design. Reach out today to start the conversation!


