Starting at $161,000+GST
Dimensions 8' x 36'
Liveable Space 394 sq.ft.
Sleeps 4 people
About Banff
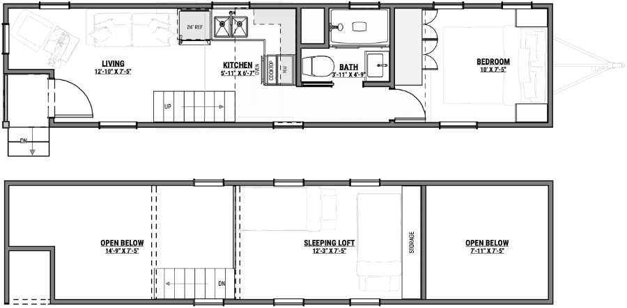
The Banff is our largest RV model—built to impress! With nearly 400 square feet of space, it’s a roomy and refined option for those who want a high-capacity layout without sacrificing mobility.
Inside, you’ll find a main floor bedroom, sleeping lofts, a dedicated office nook, and space to sleep four. The full kitchen and bath, washer/dryer combo, and four-season design make it feel like a true home wherever you decide to park it.
Features
- Full Kitchen
- Full Bathroom
- RV Hookups
- Washer/Dryer Combo
- Main Floor Bedroom
- Four-Season Ready
- Sleeping Lofts
- Certified RV
- Office Nook
Looking for added comfort? Premium upgrades like air conditioning and in-floor heating are available for any model. Just ask!
- Compact, towable design built for travel and flexibility
- Everything you need for life on the move or seasonal stays

Loving this plan?
Let's explore how the Banff could be the perfect fit for your lifestyle. This model can be customized to suit your needs, or used as inspiration for a completely custom design. Reach out today to start the conversation!


